Wohnung, Miete, Hagen
SHG+++ Schöne 3,5-Zimmerwohnung mit Balkon - Kernsanierte Fassade

Hier wohnen Sie besser! Diese schöne 3-Zimmerwohnung mit Balkon/Terrasse wartet auf Ihre neuen Mieter.

SHG+++ Schöne 3,5-Zimmerwohnung mit Balkon - Kernsanierte Fassade

Objektbeschreibung

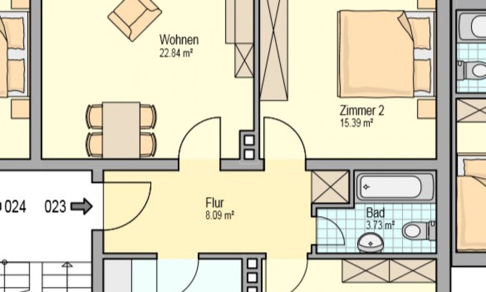
Diese charmante 3-Zimmer-Wohnung mit Balkon wartet nur darauf, neue Mieter willkommen zu heißen. Sie betreten die Wohnung über einen großzügigen Flur, von dem aus Sie bequem in alle Räume gelangen – ideal auch für eine Garderobe. Praktisch: eine kleine Abstellkammer für zusätzlichen Stauraum befindet sich gleich im Eingangsbereich. Direkt daneben liegt das Badezimmer, das mit einer modernen Dusche ausgestattet ist. Auf der linken Seite finden Sie die geräumige Küche sowie das Kinderzimmer, während sich auf der rechten Seite das Schlaf- und das Wohnzimmer befinden. Vom Wohnzimmer aus haben Sie Zugang zum Balkon, der zum Entspannen einlädt.

Lage

Die Beethovenstraße liegt zwischen der FernUniversität und der Hochschule Südwestfalen, die beide mit dem Auto, aber auch bequem zu Fuß zu erreichen sind. Der nächste KIndergarten und eine Grundschule sind in ca. 600 m bzw 500 m zu Fuß schnell zu erreichen. Mit dem Auto und dem Bus gelangen Sie in wenigen Minuten in die Hagener Innenstadt.

Sonstiges

Vereinbaren Sie jetzt einen Besichtigungstermin, wir stehen Ihnen nach Absprache auch am Wochenende und in den Abendstunden zur Verfügung.

Dies ist ein Angebot des exposé1 AG , Gerichtsstraße 25 in 58097 Hagen.

Ihr Ansprechpartner:

Herr Dustin Grelik
Telefon: 0172 706 1409

Bitte geben Sie uns bei Kontaktaufnahme per E-Mail Ihre Rufnummer (tagsüber) mit an. Herzlichen Dank.

Die Daten sind mit größter Sorgfalt ermittelt und nach bestem Wissen aufgelistet, da es sich aber um Angaben Dritter handelt kann keine Gewähr für die Richtigkeit übernommen werden.

Preise & Kosten

Nettokaltmiete € 450,-
Kaltmiete € 450,-
Warmmiete € 630,-
Nebenkosten € 180,-
Kaution € 900,-

Größe & Zustand

Wohnfläche 72,87 m2
Anzahl Etagen 2
Zimmer 3
Schlafzimmer 2
Badezimmer 1
Balkone 1
Anzahl Stellplätze 2
Zustand Nach Vereinbarung
Baujahr 1995
Verkaufsstatus offen
Verfügbar ab 01.06.2025
Verfügbar ab (Datum) 28.08.2025

Energieausweis C

Energieverbrauchskennwert
88.00 kWh / (a·m²)
0
>250
Gebäudeart
Wohngebiet
Energieausweis Art
Verbrauch
Gültig bis
2029-06-04
Energieverbrauchskennwert
88.00 kWh/m²a
Warmwasser enthalten
Baujahr lt. Energieausweis
1995
Erstellungsdatum
Ausgestellt ab dem 01.05.2014
Energieeffizenzklasse
C
Primärenergieträger
GAS

Ausstattung

Gartennutzung
Kabel / Sat- TV

Die Ausstattung entnehmen Sie bitte den Bildern.

Adresse

Beethovenstraße 96
58097 Hagen

Ansprechpartner

Dustin Grelik

exposé1 AG

Telefon004923319818180
Mobiltelefon00491727061409
Fax0049233198181821
Mailinfo@exposé1.de
Webwww.shg-group.de

Anbieter

exposé1 AG

Gerichtstraße 25
58097 Hagen

Mailanfrage@shg-group.de

Bilder

SHG+++ Schöne 3,5-Zimmerwohnung mit Balkon - Kernsanierte Fassade SHG+++ Schöne 3,5-Zimmerwohnung mit Balkon - Kernsanierte Fassade SHG+++ Schöne 3,5-Zimmerwohnung mit Balkon - Kernsanierte Fassade SHG+++ Schöne 3,5-Zimmerwohnung mit Balkon - Kernsanierte Fassade SHG+++ Schöne 3,5-Zimmerwohnung mit Balkon - Kernsanierte Fassade SHG+++ Schöne 3,5-Zimmerwohnung mit Balkon - Kernsanierte Fassade SHG+++ Schöne 3,5-Zimmerwohnung mit Balkon - Kernsanierte Fassade SHG+++ Schöne 3,5-Zimmerwohnung mit Balkon - Kernsanierte Fassade SHG+++ Schöne 3,5-Zimmerwohnung mit Balkon - Kernsanierte Fassade SHG+++ Schöne 3,5-Zimmerwohnung mit Balkon - Kernsanierte Fassade SHG+++ Schöne 3,5-Zimmerwohnung mit Balkon - Kernsanierte Fassade SHG+++ Schöne 3,5-Zimmerwohnung mit Balkon - Kernsanierte Fassade SHG+++ Schöne 3,5-Zimmerwohnung mit Balkon - Kernsanierte Fassade