Wohnung, Miete, Hagen
SHG++++ hochwertig sanierte und großzügige 4-Zimmer Wohnung im 2. OG zu vermieten

Hier wohnen Sie besser! In Hagen-Wehringhausen warten auf Sie 4 hochwertig sanierte und großzügige Wohnungen im 1., 2., 3. Obergeschoss und dem Dachgeschoss zur Miete.

SHG++++ hochwertig sanierte und großzügige 4-Zimmer Wohnung im 2. OG zu vermieten

Objektbeschreibung

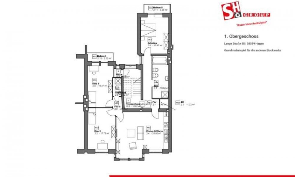
Unsere Liegenschaft verfügt über 4 identische Etagenwohnungen auf den Ebenen 1 - 4, innerhalb eines hochwertig sanierten Altbaus mit insgesamt 6 Wohneinheiten. Die Wohnungen vom 1. bis zum 3. Obergeschoss bieteen auf ca. 112,00 m² zwei Flure, ein großzügiges Wohnzimmer mit integrierter Küche, ein Schlafzimmer, zwei Kinderzimmer, ein großzügiges Bad mit Dusche, Badewanne, WC und Bidet, ein weiteres Bad für die Kinder mit Dusche und einen Abstellraum mit Waschmaschinenanschluss. Abgerundet wird unser Angebot mit 2 modernen Balkonen, die über ein Kinderzimmer und über das Schlafzimmer zu erreichen sind. Die Wohnung im DG bietet auf Grund der unwesentlichen Dachschrägen eine etwas geringere Wohnfläche, von ca. 108 m² und einen Balkon.

Lage

Das Mehrfamilienhaus liegt in der Lange Straße 80 im Hagener Stadtteil Wehringhausen. Einkaufsmöglichkeiten und Einrichtungen des täglichen Lebens sind in wenigen Minuten zu Fuß erreichbar.

Sonstiges

Vereinbaren Sie jetzt einen Besichtigungstermin, wir stehen Ihnen nach Absprache auch am Wochenende und in den Abendstunden zur Verfügung.

Dies ist ein Angebot der exposé1 GmbH, Gerichtsstraße 25 in 58097 Hagen.

Ihr Ansprechpartner:

Herr Dustin Grelik
Mobil: 0 172 - 7 06 14 09

Bitte geben Sie uns bei Kontaktaufnahme per E-Mail Ihre Rufnummer (tagsüber) mit an. Herzlichen Dank.

Die Daten sind mit größter Sorgfalt ermittelt und nach bestem Wissen aufgelistet, da es sich aber um Angaben Dritter handelt kann keine Gewähr für die Richtigkeit übernommen werden.

Preise & Kosten

Nettokaltmiete € 670,-
Kaltmiete € 670,-
Warmmiete € 860,-
Nebenkosten € 100,-
Heizkosten € 90,-
Kaution € 1.340,-

Größe & Zustand

Wohnfläche 112,87 m2
Anzahl Etagen 5
Zimmer 4
Schlafzimmer 3
Badezimmer 1
separate WCs 1
Balkone 2
Zustand Erstbezug
Baujahr 1909
Verkaufsstatus offen
Verfügbar ab sofort
Verfügbar ab (Datum) 28.08.2025

Energieausweis C

Gebäudeart
Wohngebiet
Energieausweis Art
Bedarf
Baujahr lt. Energieausweis
1909
Energieeffizenzklasse
C

Ausstattung

Abstellraum

Während der hochwertigen Sanierung wurden die Wände neu verputzt, glatt verspachtelt und weiß gestrichen. Das Gäste-Bad wurde 2,00 Meter hoch weiß gefliest und mit einer Borde aus schwarzen Mosaiksteinen abgesetzt. Das Hauptbad ist mit hochwertigen Feinsteinzeug-Fliesen und einer Marmor-Borde versehen. Die Fussbödenoberbeläge in Schlaf-, Wohn- und Kinderzimmern sind bereits mit einem Laminatboden ausgelegt worden. Die alten Balkone wurden durch moderene Aluminium-/Glaskonsturktion ersetzt.

Adresse

Lange Straße 80
58089 Hagen

Ansprechpartner

Dustin Grelik

exposé1 AG

Telefon004923319818180
Mobiltelefon00491727061409
Fax0049233198181821
Mailinfo@exposé1.de
Webwww.shg-group.de

Anbieter

exposé1 AG

Gerichtstraße 25
58097 Hagen

Mailanfrage@shg-group.de

Bilder

SHG++++ hochwertig sanierte und großzügige 4-Zimmer Wohnung im 2. OG zu vermieten SHG++++ hochwertig sanierte und großzügige 4-Zimmer Wohnung im 2. OG zu vermieten SHG++++ hochwertig sanierte und großzügige 4-Zimmer Wohnung im 2. OG zu vermieten SHG++++ hochwertig sanierte und großzügige 4-Zimmer Wohnung im 2. OG zu vermieten SHG++++ hochwertig sanierte und großzügige 4-Zimmer Wohnung im 2. OG zu vermieten SHG++++ hochwertig sanierte und großzügige 4-Zimmer Wohnung im 2. OG zu vermieten SHG++++ hochwertig sanierte und großzügige 4-Zimmer Wohnung im 2. OG zu vermieten SHG++++ hochwertig sanierte und großzügige 4-Zimmer Wohnung im 2. OG zu vermieten SHG++++ hochwertig sanierte und großzügige 4-Zimmer Wohnung im 2. OG zu vermieten SHG++++ hochwertig sanierte und großzügige 4-Zimmer Wohnung im 2. OG zu vermieten SHG++++ hochwertig sanierte und großzügige 4-Zimmer Wohnung im 2. OG zu vermieten SHG++++ hochwertig sanierte und großzügige 4-Zimmer Wohnung im 2. OG zu vermieten SHG++++ hochwertig sanierte und großzügige 4-Zimmer Wohnung im 2. OG zu vermieten SHG++++ hochwertig sanierte und großzügige 4-Zimmer Wohnung im 2. OG zu vermieten SHG++++ hochwertig sanierte und großzügige 4-Zimmer Wohnung im 2. OG zu vermieten SHG++++ hochwertig sanierte und großzügige 4-Zimmer Wohnung im 2. OG zu vermieten SHG++++ hochwertig sanierte und großzügige 4-Zimmer Wohnung im 2. OG zu vermieten SHG++++ hochwertig sanierte und großzügige 4-Zimmer Wohnung im 2. OG zu vermieten SHG++++ hochwertig sanierte und großzügige 4-Zimmer Wohnung im 2. OG zu vermieten