Haus, Kauf, Hemer
SHG+++ Neubau - Gönnen Sie sich doch eine Stadtvilla mit Garage in direkter Citylage von Hemer

Diese schicke Stadtvilla mit 4 Zimmern, Sonnenterrasse und pflegeleichten Garten könnte schon bald Ihr Zuhause werden!

SHG+++ Neubau - Gönnen Sie sich doch eine Stadtvilla mit Garage in direkter Citylage von Hemer

Objektbeschreibung

Genießen Sie warme Sommerabende bereits in Ihrem neuen Haus auf Ihrer neuen Terrasse in direkter Zentrumsnähe von Hemer.

Dieses moderne Einfamilienhaus mit ca. 116 m² Wohnfläche, 2 Stellplätzen und Garage wurde neu erbaut und lässt kaum Wünsche offen.

Das Haus mit 4 Zimmern, Sonnenterrasse und pflegeleichten Garten könnte schon bald Ihr Zuhause werden!

Lage

Die Lage kann als ruhig und dennoch sehr zentral bezeichnet werden.

Die Hemeraner Innenstadt ist in einer Minute zu Fuß zu erreichen, Kindergärten, Schulen, Einkauf, Anbindung an Bus, Bahn oder Autobahn (A46) sind wenige Minuten entfernt. Gelegenheiten zum Joggen, Spazierengehen
und Fahrradfahren finden sich in wenigen Minuten Entfernung, wie etwa im Felsenmeer oder im Erholungsgebiet Duloh.

Sonstiges

Vereinbaren Sie jetzt einen Besichtigungstermin, wir stehen Ihnen nach Absprache auch am Wochenende und in den Abendstunden zur Verfügung.

Dieses moderne Haus ist ideal für ein Paar oder eine Familie, die in zentraler Lage von Hemer mit allen Annehmlichkeiten wohnen möchten. Für einen Kaufpreis von 289.000 Euro finden Sie hier Ihr neues Zuhause und können provisionsfrei noch zum Sommer direkt einziehen!

Dies ist ein Angebot der exposé1 GmbH, Gerichtsstraße 25 in 58097 Hagen.

Ihr Ansprechpartner:

Herr Björn Scholz
Telefon: 02331.981818-12

Bitte geben Sie uns bei Kontaktaufnahme per E-Mail Ihre Rufnummer (tagsüber) mit an. Herzlichen Dank.

Die Daten sind mit größter Sorgfalt ermittelt und nach bestem Wissen aufgelistet, da es sich aber um Angaben Dritter handelt kann keine Gewähr für die Richtigkeit übernommen werden.

Preise & Kosten

Kaufpreis € 289.000,-
Käufercourtage provisionsfrei

Größe & Zustand

Wohnfläche 116 m2
Grundstücksfläche 300 m2
Anzahl Etagen 2
Zimmer 4
Schlafzimmer 3
Badezimmer 1
separate WCs 1
Balkone 1
Anzahl Stellplätze 3
Zustand Erstbezug
Alt-/Neubau Neubau
Baujahr 2014
Verkaufsstatus offen

Energieausweis B

Gebäudeart
Wohngebiet
Energieausweis Art
Bedarf
Baujahr lt. Energieausweis
2014
Energieeffizenzklasse
B

Ausstattung

Kamin
Wasch-/ Trockenraum

Im Erdgeschoss befindet sich der attraktive Wohn-/Ess- und Küchenbereich. Sie haben die freie Wahl bei der Gestaltung Ihrer Küche! Sie können wählen zwischen offener oder lieber geschlossener Küche mit praktischer Theke oder Durchreiche. Im Wohnzimmer sorgen die großen Terrassentüren für einen herrlichen Lichteinfall! Von hier aus begehen Sie Ihre über 20m² große Sonnen-Terrasse und den direkt angrenzenden Garten in Süd-West Lage. Er ist leicht überschaubar und einfach zu pflegen! Nutzen Sie dieses grüne Stück Land zum Relaxen, Sonnen oder genießen Sie hier Ihr Sonntagsfrühstück!

Für kalte Wintertage ist bereits ein Kaminzug vorbereitet, so steht gemütlichen Winterabenden am knisternden Kaminfeuer nichts mehr im Wege. Ein Gäste-WC und ein Hauswirtschaftsraum sind auf dieser Etage vorhanden.

Durch den Hauswirtschaftsraum haben Sie die Möglichkeit die Garage mit elektrischem Sektionaltor zu betreten. So können Sie bei jedem Wetter geschützt in Ihr Auto und ins Haus gelangen.

Für ein weiteres Fahrzeug oder Ihren Besuch wurden bereits zwei praktische Stellplätze neben dem Haus angelegt.

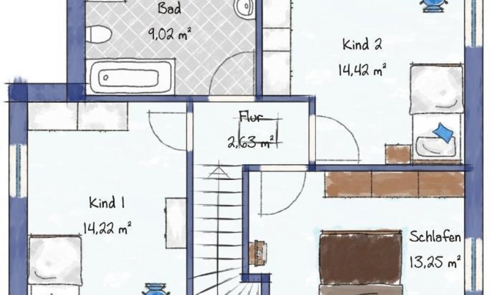
Über die Treppe erreichen Sie die 1. Etage des Hauses. Die Treppe ist mit Granit belegt und ein Edelstahlgeländer sorgt für Ihre Sicherheit. Im Obergeschoss befinden sich drei weitere Schlaf- oder Arbeitszimmer.

Das Badezimmer ist mit Eckwanne, Dusche und großem bodentiefen Fenster ausgestattet. Geheizt wird durch eine Gaszentralheizung mit Fußbodenheizung.

Die gesamten Bodenbeläge im Haus (ausser der Garage) sind im Kaufpreis enthalten!

Adresse

An der Steinert 6
58675 Hemer

Ansprechpartner

Dustin Grelik

exposé1 AG

Telefon004923319818180
Mobiltelefon00491727061409
Fax0049233198181821
Mailinfo@exposé1.de
Webwww.shg-group.de

Anbieter

exposé1 AG

Gerichtstraße 25
58097 Hagen

Mailanfrage@shg-group.de

Bilder

SHG+++ Neubau - Gönnen Sie sich doch eine Stadtvilla mit Garage in direkter Citylage von Hemer SHG+++ Neubau - Gönnen Sie sich doch eine Stadtvilla mit Garage in direkter Citylage von Hemer SHG+++ Neubau - Gönnen Sie sich doch eine Stadtvilla mit Garage in direkter Citylage von Hemer SHG+++ Neubau - Gönnen Sie sich doch eine Stadtvilla mit Garage in direkter Citylage von Hemer SHG+++ Neubau - Gönnen Sie sich doch eine Stadtvilla mit Garage in direkter Citylage von Hemer SHG+++ Neubau - Gönnen Sie sich doch eine Stadtvilla mit Garage in direkter Citylage von Hemer SHG+++ Neubau - Gönnen Sie sich doch eine Stadtvilla mit Garage in direkter Citylage von Hemer SHG+++ Neubau - Gönnen Sie sich doch eine Stadtvilla mit Garage in direkter Citylage von Hemer SHG+++ Neubau - Gönnen Sie sich doch eine Stadtvilla mit Garage in direkter Citylage von Hemer SHG+++ Neubau - Gönnen Sie sich doch eine Stadtvilla mit Garage in direkter Citylage von Hemer